Reservations: +1-888-407-3027



24-Hour Front Desk
Heating
Free Wi-Fi
Non-Smoking Rooms Available
Outdoor fireplace
Smoke alarms
Show all amenities
Discover the perfect alpine retreat at Ambassador 003, nestled in the heart of Verbier, Switzerland. Just a short 5-minute stroll from the renowned 4 Vallées ski area, this charming apartment offers ... more
Ambassador 003 is an apartment.
Yes, Ambassador 003 provides free WiFi for its guests.
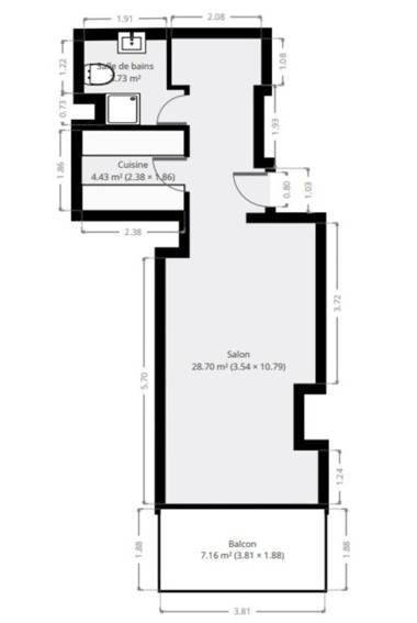
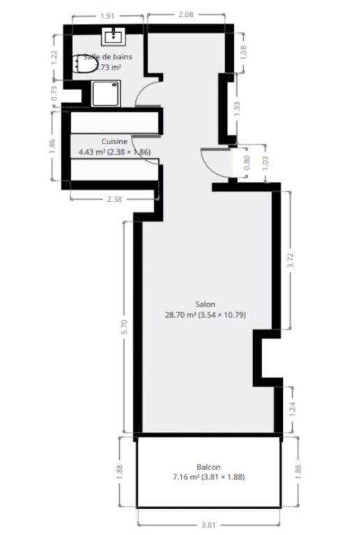
The apartment includes a balcony, TV, well-equipped kitchen with a dishwasher, fridge, and oven, as well as a bathroom with a shower and hairdryer.
Yes, the hotel offers a 24-hour front desk service.
Ambassador 003 is located just a 5-minute walk from the 4 Vallées skiing area.
Yes, the apartment is equipped with a kitchen that includes a dishwasher, fridge, and oven, allowing you to cook your own meals.
Please inquire directly with Ambassador 003 for their pet policy.
Please check with Ambassador 003 for information regarding parking facilities.
For check-in and check-out times, please contact the hotel directly.
For details on the cancellation policy, please check with Ambassador 003 when making your reservation.
Check-in: 17:00
Check-out: 10:00